E½Ã½ºÅÛ °³¿ä

Ãþ»ó¹è°ü (º®ºÎÇü, ¹Ù´Ú¸Å¸³Çü)

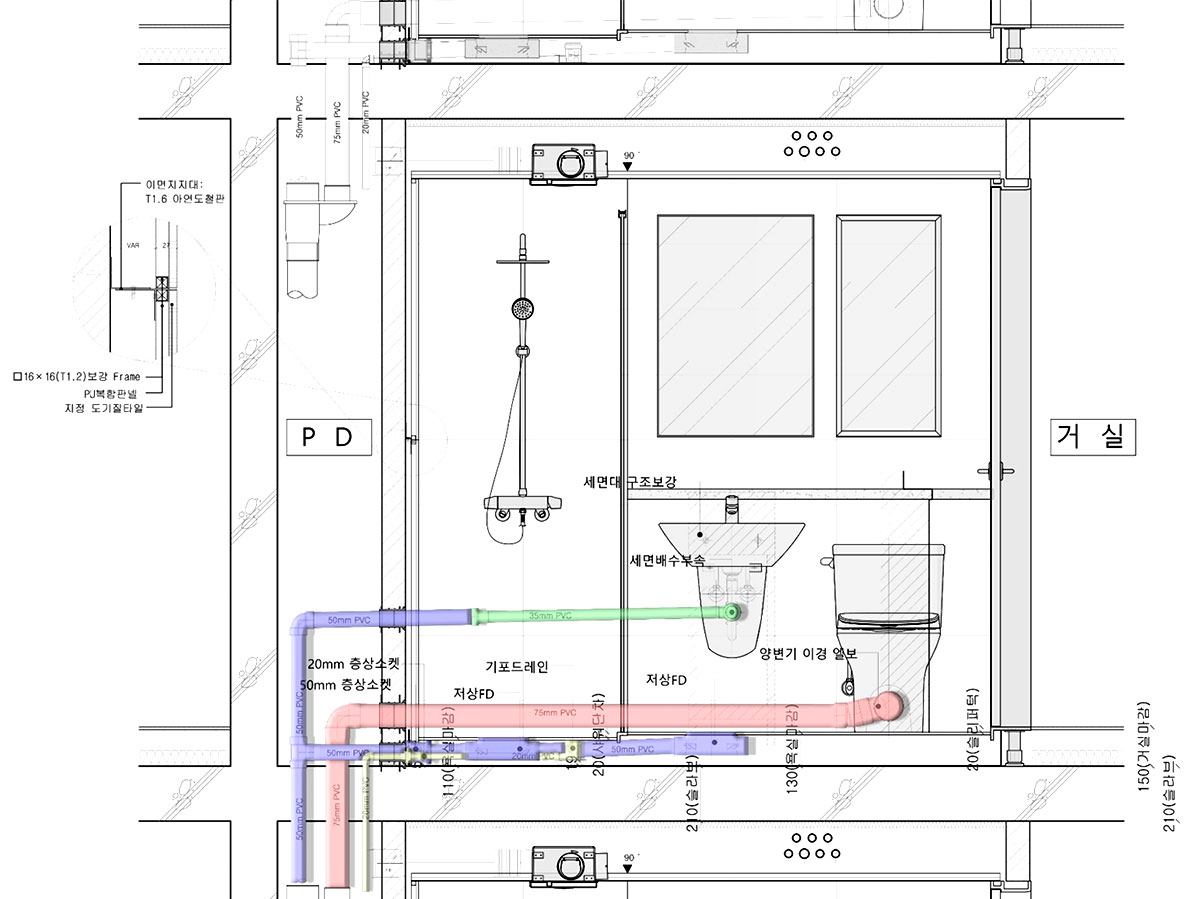
½Ã½ºÅÛ¿å½ÇÀÇ º®ºÎÇü »ó¼¼µµ¸é (»þ¿öÇü)

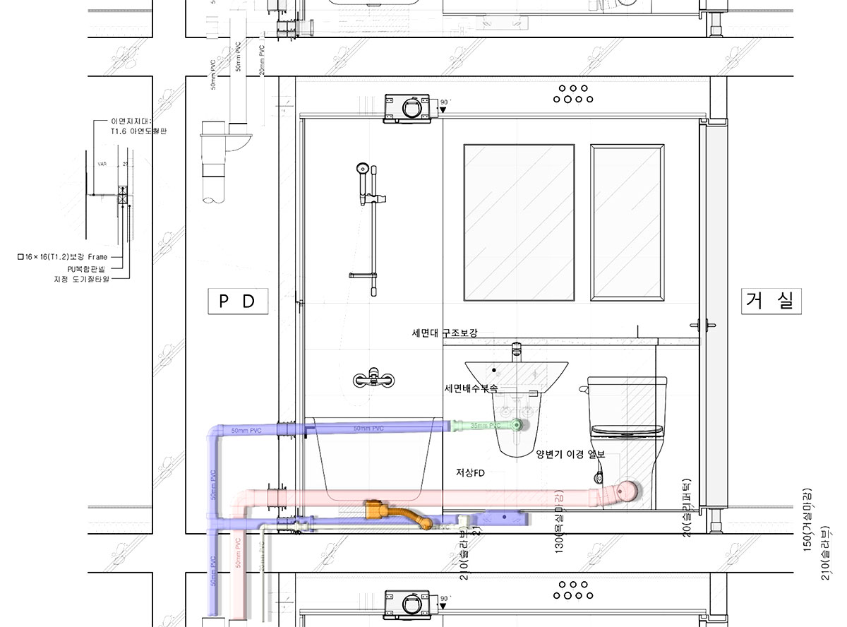
½Ã½ºÅÛ¿å½ÇÀÇ º®ºÎÇü ¼¼ºÎ »ó¼¼µµ¸é (¿åÁ¶Çü)

½Ã½ºÅÛ¿å½ÇÀÇ ¹Ù´Ú ¸Å¸³Çü »ó¼¼µµ¸é

  • 50mm ¹è¼ö¹è°ü
  • 75mm ¿À¼ö¹è°ü
  • 35mm ¼¼¸é¹è¼ö¹è°ü
  • 20mm ±âÆ÷µå·¹ÀÎ
  • ¡Ø±¸Á¶´Ù¿î ¾øÀÌ ½½¸®ÆÛÅÎ H:20mm·Î ±¸Çö °¡´É

°úõ»ç¹«¼Ò : °æ±âµµ °úõ½Ã °úõ´ë·Î7´Ù±æ 60 ±Ý°­°ø¾÷ºôµù 8Ãþ ±Ý°­Æ¼¿¤ TEL : 02-6246-7250 FAX : 02-6246-7279 °øÀå : °æ±âµµ ¿©Áֽà ´ë½Å¸é ¿©¾ç1·Î 255 TEL : 031-885-2724 FAX : 031-885-2725

Copyright ¨Ï 2021 kumkangtiel. All rights reserved. [°ü¸®ÀÚ]